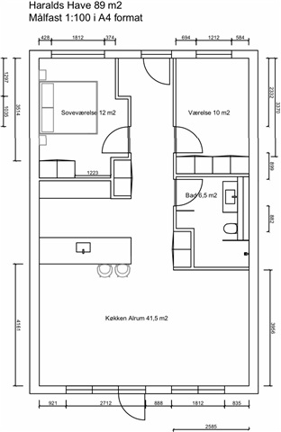
3 værelses hus/villa på 88 m2

8.800 kr.
  • Hus
  • Fanø
  • 88 m2
  • 3 vær.
  • Ubegrænset
Kontakt udlejer

Køb adgang for 8 kr. i 4 dage. Derefter 28 dage til 329 kr.

  • Adgang til alle udlejere
  • Alle boliger
  • Besked om nye boliger
  • Fordele og tilbud
  • Husleje: 8.800 kr.,-
  • Depositum: 35.200 kr.
  • Forudbetalt leje: 0 kr.
  • Forbrug: 200 kr.
  • Ledig fra: 15. februar 2026
  • Husdyr: Kontakt udlejer
  • Elevator: Kontakt udlejer
  • Altan/terrasse: Kontakt udlejer

Virkelig lækre, ny opførte rækkehuse i bedste kvalitet
Boligerne vil have køleskab, fryser, kogeplade og ovn. Lejer medbringer selv vaskemaskine og eventuel tørretumbler. Der vil desuden være en opvaskemaskine i boligerne.
I badeværelset vil der blive gjort klart til vaskemaskine, evt. vaskesøjle med vaskemaskine og tørretumbler. 
Husdyr er tilladt, såfremt de er renlige, og ikke forstyrrer de øvrige beboere.
Der er faste skabe i alle værelser.
Hver bolig får egen p-plads og får adgang til boligen via den tilstødende vej ’Haralds Toft’. Haralds Have er en lukket matrikel, og der vil ikke være gennemgående trafik eller uvedkommende trafik på grunden.
Der vil være mulighed for at opsætte en lade stander ved hver bolig. Lejer finder selv leverandør, og opstiller ladestander.
indbygget spots i køkken og på bad
Det bliver muligt at aftale isolering af skuret mod et tillæg, som aftales direkte med entreprenøren.
VI FREMHÆVER: 

20 rækkehus med stue/køkken og 2 værelser på 88-91 m2
Funktionelle planløsninger med lyse rum og store vinduer
Gulvvarme i hele boligen
Egen for- og baghave, størrelse afhænger af bolig
HTH køkken
Vestfrost hvidevarer
Hans Grohe toilet
Direkte afregning med forsyningsvirksomhederne
Parkering til hver bolig, forberedt til El-stander
Individuelt skur med strøm
Grønt fællesareal
priser fra 8800kr. pr. md.

Se alle boliger i Fanø
eller søg i nærheden