Lejlighed til 10.274 kr.

10.274 kr.
  • Lejlighed
  • Fanø
  • 108 m2
  • 3 vær.
  • Ubegrænset
Kontakt udlejer

Køb adgang for 8 kr. i 4 dage. Derefter 28 dage til 329 kr.

  • Adgang til alle udlejere
  • Alle boliger
  • Besked om nye boliger
  • Fordele og tilbud
  • Husleje: 10.274 kr.,-
  • Depositum: 40.341 kr.
  • Forudbetalt leje: 0 kr.
  • Forbrug: 530 kr.
  • Ledig fra: Straks
  • Husdyr: Kontakt udlejer
  • Elevator: Ja
  • Altan/terrasse: Kontakt udlejer

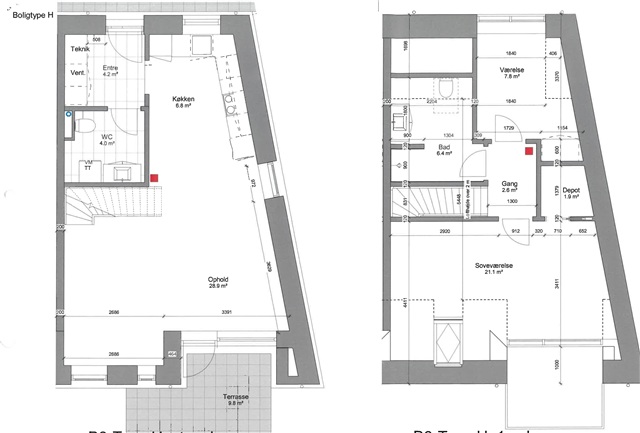
Nybyggeri på Fanø
Lækkert nyopført etage byggeri, centralt i Nordby 
2 etager
Stuen etagen indeholder entre med god garderobe plads 
Flot HTH køkken med alt i hårde hvidevare
Stor stue med adgang til egen terrasse
Der er gæstetoilet med plads til vaskemaskine og tørretumbler 
På 1. salen er der meget stort soveværelse med mindre depot rum
1 Børneværelse/kontor
Lækkert brusebadeværelse 
Ejendommen er opført i bedste kvalitet

Se alle boliger i Fanø
eller søg i nærheden