Lejlighed med altan/terrasse
20.156 kr.- Lejlighed
- Frederiksberg
- 129 m2
- 2 vær.
- Ubegrænset
- Husleje: 20.156 kr.,-
- Depositum: 60.468 kr.
- Forudbetalt leje: 60.468 kr.
- Forbrug: 1.300 kr.
- Ledig fra: Straks
- Husdyr: Kontakt udlejer
- Elevator: Kontakt udlejer
- Altan/terrasse: Ja
Denne nyopførte penthouse lejlighed er beliggende i Sonninghus – yderst centralt på Frederiksberg. I midten af ejendommens gård, er der et skønt fællesområde, hvor der både er plads til leg på græsplænen og stille stunder på de hyggelige terrasser. Til ejendommen hører private parkeringspladser, som kan lejes på månedlig basis, og der er privat opbevaringsrum i kælderen til alle lejemål.
Ejendommen er beliggende på en stille og ugenert sidegade til Falkoner Allé, og fra ejendommen er der kun få minutters gang til både shopping, offentlig transport herunder bl.a. metro ved Frederiksberg Centret. Endvidere er der kort afstand til naturskønne områder som Frederiksberg Have eller Søerne i indre by.
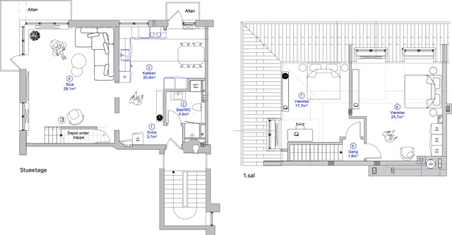
Lejligheden indeholder: Entré med indbygget skab. Dejligt nyt badeværelse med bruseniche samt både vaskemaskine og tørretumbler. Skønt rummeligt køkken/alrum med alle hårde hvidevarer, god skabs- og spiseplads samt lille altan. Rummelig og lys stue med udgang til fantastisk altan. På 1 sal er der indrette et stort soveværelse med indbyggede skabe samt ydermere et værelse/kontor.
Vi har endnu ikke billeder indefra lejligheden, så derfor har vi anvendt billeder fra en lignende lejlighed i ejendommen.