Lejlighed til 15.250 kr.
15.250 kr.- Lejlighed
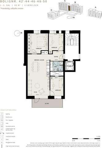
- Herlev
- 99 m2
- 4 vær.
- Ubegrænset
Køb adgang for 8 kr. i 4 dage. Derefter 28 dage til 329 kr.
- Adgang til alle udlejere
- Alle boliger
- Besked om nye boliger
- Fordele og tilbud
- Husleje: 15.250 kr.,-
- Depositum: 45.750 kr.
- Forudbetalt leje: 15.250 kr.
- Forbrug: Kontakt udlejer
- Ledig fra: 1. februar 2026
- Husdyr: Ja
- Elevator: Kontakt udlejer
- Altan/terrasse: Ja
Boligerne er indrettet i enkel nordisk stil med store vinduespartier, der sikrer de velindrettede lejligheder både dagslys og udsigt. På gulvene er 3-stavs matlakeret parket i natureg, som skaber det perfekte grundlag for enhver indretning.I køkkenerne skal der kokkereres i HTHs hvide KP Mono-serie med aluminiumssokkel, laminatbordplade i grå stonelook og det stilrene Grohe Cosmopolitan armatur i køkkenvasken. Overskabene har praktiske lys-spots, og alle køkkenets hårde hvidevarer medfølger naturligvis. Lysindfaldet gennem de store vinduespartier, gør køkken-alrummet til boligens attraktive og centrale opholdsrum.OBS: Billederne er ikke fra den specifikke bolig. Plantegninger er vejledende og der tages forbehold for eventuelle mindre ændringer.