5 værelses hus/villa inkl. parkering
13.395 kr.- Hus
- Hørning
- 137 m2
- 5 vær.
- Ubegrænset
Køb adgang for 8 kr. i 4 dage. Derefter 28 dage til 329 kr.
- Adgang til alle udlejere
- Alle boliger
- Besked om nye boliger
- Fordele og tilbud
- Husleje: 13.395 kr.,-
- Depositum: 40.185 kr.
- Forudbetalt leje: 13.395 kr.
- Forbrug: Kontakt udlejer
- Ledig fra: 1. marts 2026
- Husdyr: Ja
- Elevator: Kontakt udlejer
- Altan/terrasse: Ja
Er du på udkig efter et moderne og rummeligt rækkehus i et roligt og naturskønt område, samtidig med at du har kort afstand til både Aarhus og Skanderborg? Så er dette 137 kvm. store rækkehus i Hørning et fantastisk valg!
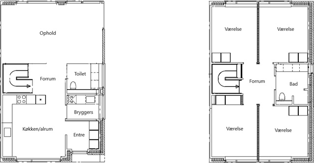
Rækkehuset byder på en optimal indretning med lyse og luftige rum. I stueplan finder du en entré, et gæstetoilet samt et åbent køkken-alrum med en stilfuld køkkenø, der er ideelt til både madlavning og samvær. Herfra er der adgang til en hyggelig stue, hvor der er mulighed for at indrette sig praktisk og hyggeligt.
På 1. sal er der et lækkert badeværelse samt 4 rummelige værelser, der kan bruges som soveværelse, børneværelse, kontor eller gæsteværelse.
Boligen har også en praktisk have, et skur til opbevaring og en carport. Der er endvidere mulighed for at have en terrasse på begge sider af boligen, så du kan tilpasse udendørsarealerne til dine behov.
Dette er en ideel bolig for dig, der ønsker at bo i et moderne hjem med god plads og en central beliggenhed. Kontakt os for mere information og fremvisning!