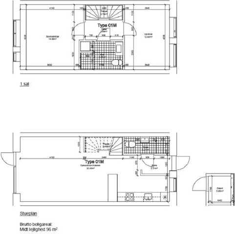
96 m2 lejlighed på Holbergshave

9.950 kr.
  • Lejlighed
  • Kolding
  • 96 m2
  • 3 vær.
  • Ubegrænset
Kontakt udlejer

Køb adgang for 8 kr. i 4 dage. Derefter 28 dage til 329 kr.

  • Adgang til alle udlejere
  • Alle boliger
  • Besked om nye boliger
  • Fordele og tilbud
  • Husleje: 9.950 kr.,-
  • Depositum: 29.850 kr.
  • Forudbetalt leje: 9.950 kr.
  • Forbrug: 0 kr.
  • Ledig fra: 15. januar 2026
  • Husdyr: Kontakt udlejer
  • Elevator: Kontakt udlejer
  • Altan/terrasse: Ja

GRATIS HUSLEJE I NOVEMBER 2025

BOLIG MED STOR TERRASSE – KLAR TIL INDFLYTNINGLÅN TIL DEPOSITUM

Beliggende med busstoppested lige foran ejendommen og dagligvarebutikken NETTO som nærmeste nabo.

Materialebeskrivelsen2-plan bolig med mulighed for installation af trappelift mellem stueplan og 1. sal.Boligerne er installeret med gulvvarme, ventilation, vaskemaskine, tørretumbler, kølefryseskab, pyrolyseovn, induktionskogeplade og opvaskemaskine.

ForbrugHuslejen er eksklusiv forbrug – lejer afregner forbrug (el, vand og varme) direkte med forsyningsselskaberne.

HusdyrHusdyr kan godkendes, men må ikke være til gene for andre beboere.

ParkeringBoligen inkluderer en parkeringsplads uden overdækning.

SkurAlle boliger inkluderer et skur på ca. 3,5 m².

GæstelejlighedDet er muligt at låne gæstelejlighed på LykkesHave til overnattende gæster.

CleverDer er etableret 11 kw ladestandere på matriklen.





Se mere på link herunder for lån til depositum:

Se alle boliger i Kolding
eller søg i nærheden