Hus/villa med altan/terrasse

12.187 kr.
  • Hus
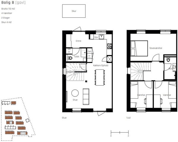
  • Nyborg
  • 112 m2
  • 4 vær.
  • Ubegrænset
Kontakt udlejer

Køb adgang for 8 kr. i 4 dage. Derefter 28 dage til 329 kr.

  • Adgang til alle udlejere
  • Alle boliger
  • Besked om nye boliger
  • Fordele og tilbud
  • Husleje: 12.187 kr.,-
  • Depositum: 36.561 kr.
  • Forudbetalt leje: 12.187 kr.
  • Forbrug: Kontakt udlejer
  • Ledig fra: 1. maj 2026
  • Husdyr: Ja
  • Elevator: Kontakt udlejer
  • Altan/terrasse: Ja

Byhuse med suveræn beliggenhedOmrådet har den store fordel, at beliggenheden både er bynær og omgivet af smuk natur. Der er kun tre kilometer til hjertet af Nyborg med et væld af indkøbsmuligheder, spisesteder og kulturelle oplevelser. For naturelskeren har det samtidig sine åbenlyse fordele at bo omgivet af både strand og skov. Få hunderede meter fra hoveddøren venter den smukke kystlinje og udsigten over Storebælt.Boliger i ét med naturenAlle boliger er moderne indrettet med lyse og lette materialer i en skandinavisk linje, hvor de hvide flader, velvalgte klinker og elegante trægulve skaber rammerne om de enkelte rum. Gulvene er smukt egetræsplank med mat finish og støjdæmpende lyddug. Samtidig er kvadratmeterne udnyttet optimalt, og I vil opleve moderne planløsninger helt uden spildplads. I alle boligerne er køkken-alrummet et naturligt samlingssted, hvorfra der er udgang til et privat og solrigt udendørsareal. Facadernes blødstrøgne mursten med spil i gule og grønlige nuancer vækker minder om skovbryn i efterårsfarver, som i den grad er tro mod de naturskønne omgivelser. Som en passende pendant til facadernes autentiske og bæredygtige materialer er husene forsyn et med smukke, grønne sedumtage, der fletter naturligt ind i området og skaber et frodigt tæppe på toppen af Området.Lejlighederne er udstyret med ventilationsanlæg, der sørger for varmegenvinding, ligesom der er gulvvarme i alle rum med individuelle trådløse rumtermostater, der sikrer et veltempereret og energivenligt indeklima. I hver bolig er der også indbyggede fugtfølere, der automatisk regulerer udsugning efter behov og belastning. Entréen har skydelåger uden indretning, og der er ikke etableret skabe i soveværelse eller værelser. FællesfaciliteterBeboerne på Området får adgang til et stort, flot fælleshus, hvor der er god plads til fejring af mærkedagene med venner og familie, hvis pladsen bliver for trang derhjemme. Fælleshuset opføres som et 120 kvadratmeter stort orangeri i glas og tegl, hvor lyset uhindret kan strømme ind fra alle fire verdenshjørner. Området mellem boligerne får et veludbygget stisystem, der bugter sig mellem de enkelte boligblokke, fælleshuset og det grønne bælte mod skoven og stranden. Missionen er at få et let tilgængeligt og trygt stisystem, der forbinder boligerne med omgivelserne. Området mellem boligerne og fælleshuset beplantes med henblik på at skabe grønne rammer til leg og fællesskab. Fællesarealerne tæller også et velanlagt parkeringsområde, der gør det nemt for beboere med egen bil at parkere tæt på boligen – samtidig med at man har et idyllisk nabolag, hvor børnene trygt kan færdes frit uden gennemkørende trafik.

Se alle boliger i Nyborg
eller søg i nærheden