Luksuslejlighed i spændende ejendom

8.250 kr.
  • Lejlighed
  • Odense C
  • 103 m2
  • 1 vær.
  • Ubegrænset
Kontakt udlejer

Køb adgang for 8 kr. i 4 dage. Derefter 28 dage til 329 kr.

  • Adgang til alle udlejere
  • Alle boliger
  • Besked om nye boliger
  • Fordele og tilbud
  • Husleje: 8.250 kr.,-
  • Depositum: 24.750 kr.
  • Forudbetalt leje: 8.250 kr.
  • Forbrug: 1.850 kr.
  • Ledig fra: Straks
  • Husdyr: Kontakt udlejer
  • Elevator: Kontakt udlejer
  • Altan/terrasse: Ja

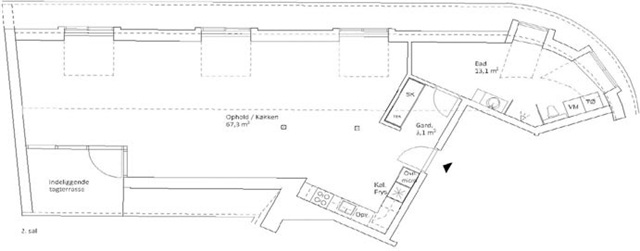
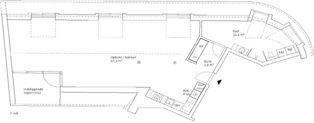
Spændende stor 1-værelses New Yorker-inspireret lejlighed

Denne eksklusive lejlighed på Grønnegade, midt i hjertet af Odense C – i et af byens mest eftertragtede kvarterer. Her bor du med gågaden lige om hjørnet, hvor specialbutikker, caféer og restauranter skaber en levende og charmerende atmosfære året rundt. Samtidig er der kort afstand til grønne åndehuller som Eventyrhaven og stisystemerne langs Odense Å, der indbyder til både ro og aktivitet i det fri.


Området kombinerer det bedste fra byliv og natur, og med let adgang til offentlig transport og Odense Banegård inden for få minutters gang, er du perfekt forbundet – både lokalt og regionalt. Grønnegade er for dig, der ønsker en central beliggenhed uden at gå på kompromis med ro, kvalitet og nærhed til det hele.


Denne fantastiske lejlighed er en et værelses, men med usædvanlig meget plads. Der er en dejlig rum fordeling, og både opvaskemaskine, mikroovn, tørretumbler og vaskemaskine. Som prikken over i'et er der yderligere en skøn østvendt tagterrasse (3,40m x 2,80m), så du til enhver tid kan nyde et friskt pust i rolige rammer.




Praktisk info:
- Der er mulighed for at tilkøbe egen parkeringsplads.
- Udover huslejen betales der til udlejer for vand og varme. Dette beløb figurerer under a conto forbrug.
- El og antenne opkræves direkte fra de pågældende forsyningsselskaber.



Adgang til:
- Fælles gårdanlæg
- Cykelskur

Se alle boliger i Odense C
eller søg i nærheden