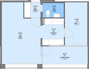
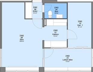
Moderne 4-værelses rækkehus på 106 m2 med terra...
- 12.500,-
- 106 m2
- 4 vær.
Ringsted på Midtsjælland, er en de ældste byer på Sjælland. Byen er fuld af muligheder, hvad enten man leder efter kultur, natur eller en god base til hverdagslivet. Ringsted Ådal er et godt eksempel herpå: Et skønt naturområde, der aktuelt er under udvikling, så området bliver fuld af liv. Fra Ringsted kan du komme til Hovedbanegården på ca. 30 minutter med toget, men ellers tilbyder byen selv, alt du skal bruge til at få hverdagen til at køre.
DAB udlejer og administrerer 50.000 boliger for almene boligselskaber og kommuner i hele Danmark. I postnummer 4100 Ringsted på Sjælland tilbyder DAB blandt andet familieboliger og ældreboliger i etageejendomme samt rækkehuse. Ringsted har ca. 22.940 indbyggere.
Ringsteds dampmøllegrund er 4.978 m2 stor og afgrænses mod nord af Mllegade og Ringsteds bykerne, mod øst af Nstvedgade og mod syd af Hovmarksvej. Grunden støder op til villabebyggelse mod vest. Ringsted Kirkegård, der ligger øst for byggepladsen, giver et frit udsyn til den kommende bebyggelse.
Futurum ApS udlejer kvalitetsboliger i nøje udvalgte områder i hele Danmark. I Ringsted på Sjælland tilbyder de energivenlige boliger på Nonnedalen, som ligger i byens vestlige udkant, tæt på Ringsted Å og åbne landskaber. Udbuddet af ledige lejemål varierer.