4 værelser for 6.586 kr. pr. måned

6.586 kr.
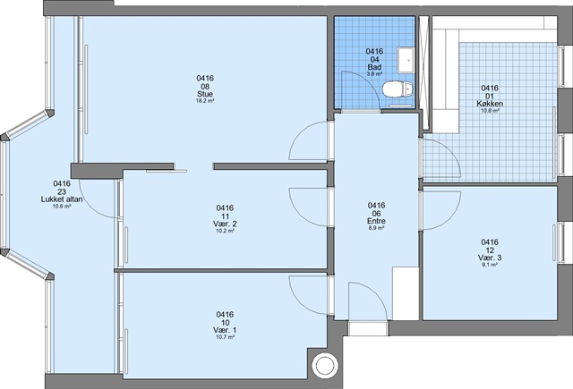
  • Lejlighed
  • Rødby
  • 98 m2
  • 4 vær.
  • Ubegrænset
Kontakt udlejer

Køb adgang for 8 kr. i 4 dage. Derefter 28 dage til 329 kr.

  • Adgang til alle udlejere
  • Alle boliger
  • Besked om nye boliger
  • Fordele og tilbud
  • Husleje: 6.586 kr.,-
  • Depositum: 17.582 kr.
  • Forudbetalt leje: Kontakt udlejer
  • Forbrug: 556 kr.
  • Ledig fra: Straks
  • Husdyr: Ja
  • Elevator: Kontakt udlejer
  • Altan/terrasse: Kontakt udlejer

Gode boliger med glasinddækkede altaner og stort, flot parkareal.

Kongeleddet har store grønne fælles parkområder til ophold og leg. Der er trygge og imødekommende rammer for både ældre og børnefamilier og kun 200 meter til et stort supermarked.

Beboerne passer på hinanden, og der er mange fælles aktiviteter, som banko, hyggeklub, sommerfest, beboerrevy og motionsrum.

Kongeleddet har et aktivt beboerdemokrati, hvor alle beslutninger om afdelingen bliver truffet af beboerne selv.

Kongeleddet har pæne, store lejligheder i alle størrelser. En del af lejlighederne ved jorden er handicapegnede. Boligerne har glasinddækkede altaner og er nymalede ved indflytning.

Huslejen er inklusiv vand, renovation og service fra ejendomsfunktionærerne, der rydder sne, klipper hæk og slår græs.

Kongeleddet får billig fjernvarme fra et af Danmarks billigste fjernvarmeværker. Der er også mulighed for tilkøb af hurtigt bredbånd og frit valg TV pakker via Stofa og Waoo.

Der er både billige fællesvaskerier og mulighed for tilladelse til at tilslutte egen vaskemaskine og kondenstørretumbler.

Busforbindelsen mod Maribo er lige ved døren. Det tager under en halv time at tage bussen til Maribo, der kører.

Blot fire kilometer fra Kongeleddet ligger Rødby folkeskole med klasser fra 0. til 10. klasse – under 10 minutter med bussen.

Kongeleddet er tæt på togstationen Rødbyfærge med togforbindelse til København og færge til Tyskland. Der er blot 25 minutter til Nykøbing F., hvor der blandt andet findes flere tekniske skoler.

Motorvej tæt på med mindre end en times kørsel til Næstved og 90 minutter til København. Tæt på Lalandia og fantastiske sandstrande og natur.

I Rødby findes flere indkøbsmuligheder og lægehus/tandlæger og apotek.

Denne bolig udlejes via et almennyttigt boligselskab, vær derfor opmærksom på reglerne for dette.

Åbningstider for telefonisk henvendelse:
(Husk at taste 1 for at komme direkte igennem)

Mandag til fredag kl. 9:30 - 15:00

Se alle boliger i Rødby
eller søg i nærheden