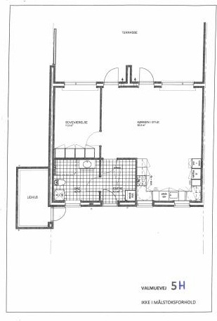
2 værelser for 5.057 kr. pr. måned

5.057 kr.
  • Lejlighed
  • Spøttrup
  • 71 m2
  • 2 vær.
  • Ubegrænset
Kontakt udlejer

Køb adgang for 8 kr. i 4 dage. Derefter 28 dage til 329 kr.

  • Adgang til alle udlejere
  • Alle boliger
  • Besked om nye boliger
  • Fordele og tilbud
  • Husleje: 5.057 kr.,-
  • Depositum: 11.500 kr.
  • Forudbetalt leje: Kontakt udlejer
  • Forbrug: Kontakt udlejer
  • Ledig fra: 1. januar 2026
  • Husdyr: Ja
  • Elevator: Kontakt udlejer
  • Altan/terrasse: Kontakt udlejer

Hyggelige og moderne boliger i Hvidbjerg, Ramsing, Lem & Lihme
Afdelingerne i Hvidbjerg, Ramsing, Lem og Lihme tilbyder moderne og renoverede bo-
liger, ideelle for både små og store familier, singler og par, der søger et hjem i
naturskønne og rolige omgivelser. Fra gårdhuse og dobbelthuse i Hvidbjerg og Ramsing,
til nyrenoverede boliger i Lem og Lihme, er der et bredt udvalg af boliger med mo-
derne faciliteter, grønne områder og et stærkt lokalsamfund.

Denne bolig udlejes via et almennyttigt boligselskab, som kræver medlemskab.

Åbningstider:
Mandag kl. 10.00 - 14.00
Tirsdag kl. 10.00 - 14.00 & 16.00 - 17.30
Onsdag - torsdag kl. 10.00 - 14.00
Fredag kl. 9.30 - 11.30

Se alle boliger i Spøttrup
eller søg i nærheden