Moderne Rækkehus i naturskønne omgivelser.

9.800 kr.
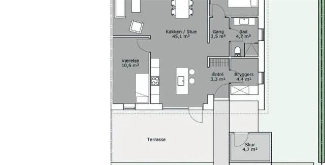
  • Lejlighed
  • Sunds
  • 101 m2
  • 3 vær.
  • Ubegrænset
Kontakt udlejer

Køb adgang for 8 kr. i 4 dage. Derefter 28 dage til 329 kr.

  • Adgang til alle udlejere
  • Alle boliger
  • Besked om nye boliger
  • Fordele og tilbud
  • Husleje: 9.800 kr.,-
  • Depositum: 29.400 kr.
  • Forudbetalt leje: 9.800 kr.
  • Forbrug: 500 kr.
  • Ledig fra: 1. maj 2026
  • Husdyr: Ja
  • Elevator: Kontakt udlejer
  • Altan/terrasse: Ja

Et fantastisk sted at bo, især for familier, der ønsker trygge rammer og en harmonisk hverdag. Området kombinerer ro og liv på en måde, der giver en dejlig start på tilværelsen..
Placeringen er optimal for både børnefamilier og pendlere da både Sunds Skole og motorvejen ligger ganske tæt på, hvilket gør hverdagen nem og overskuelig..
Til boligen hører desuden egen carport og depotrum, og det er dejligt nemt at få installeret en el-ladeboks. .
Ønsker I en fremvisning, er I hjertens velkomne til at kontakte os..
Vi viser boligen med glæde frem! 😊

Se alle boliger i Sunds
eller søg i nærheden