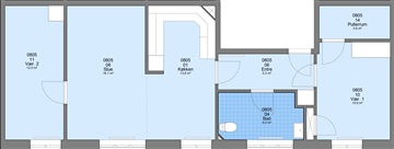
Storegade, 88 m2, 3 værelser, 6.779 kr.
- 6.779,-
- 88 m2
- 3 vær.
Den store landsby Tistrup ligger mellem Vestjyllands største byer Varde og Ølgod. Dens centrale placering har lokket mange unge børnefamilier til at finde en lejebolig i området. Det fleste familier har behov for at logistikken i hverdagen skal gå op, og her har Tistrup en masse at byde på med gode skoler, togstation i nærheden og indkøbsmuligheder, der alt sammen er med på at gøre hverdagen lettere.
Hvis du lige er startet i livet og leder efter et sted at bo, eller hvis du har en stor familie og leder efter et sted, hvor vi kan arbejde sammen om at bygge et hjem og bo, har vi måske noget for dig. Hvis der er udfordringer med at komme rundt er det flere handikapvenlige boliger.