Lejlighed til 19.850 kr.

19.850 kr.
  • Lejlighed
  • Valby
  • 111 m2
  • 5 vær.
  • Ubegrænset
Kontakt udlejer

Køb adgang for 8 kr. i 4 dage. Derefter 28 dage til 329 kr.

  • Adgang til alle udlejere
  • Alle boliger
  • Besked om nye boliger
  • Fordele og tilbud
  • Husleje: 19.850 kr.,-
  • Depositum: 59.550 kr.
  • Forudbetalt leje: 19.850 kr.
  • Forbrug: Kontakt udlejer
  • Ledig fra: 1. januar 2026
  • Husdyr: Kontakt udlejer
  • Elevator: Kontakt udlejer
  • Altan/terrasse: Ja

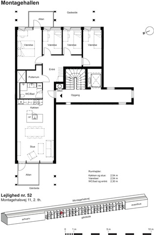
Træd ind i denne rummelige og lyse 5-værelses lejlighed på 111 m², beliggende på eftertragtede Montagehalsvej i hjertet af Valby. Her får du et hjem, hvor plads og funktionalitet smelter sammen med stilfuld komfort og byens pulserende energi lige udenfor døren.Køkkenet er et moderne samlingspunkt med alt i hårde hvidevarer, der gør madlavning til en leg – uanset om det er hurtige hverdagsretter eller store middage med venner og familie. Badeværelset er ligeså veludstyret og byder på kvalitetsløsninger, der sikrer en nem og afslappende hverdag.Lejlighedens rummelige værelser giver plads til både privatliv og fælles hygge, og fra stuen åbner en solrig altan op, hvor du kan nyde dagens første kaffe eller afslutte dagen med et glas vin under åben himmel.Valby er et område, der kombinerer det bedste fra byens liv og grønne oaser. Her finder du et pulserende miljø med hyggelige caféer, gode shoppingmuligheder og grønne parker, der indbyder til afslapning og aktiviteter året rundt. Montagehalsvej ligger tæt på offentlig transport og større veje, så du hurtigt kommer rundt i København og omegn.Denne lejlighed på Montagehalsvej er det ideelle hjem for dig, der ønsker en stor og velindrettet bolig i et levende og attraktivt kvarter med både byliv og natur lige ved hånden.Der vil i forbindelse med anmodning om leje af lejligheden, blive fortaget en kreditvurdering af kommende lejer ved anvendelse af CPR-nummer.OBS! Billederne og plantegning er ikke fra den specifikke lejlighed.

Se alle boliger i Valby
eller søg i nærheden