3 værelser for 5.756 kr. pr. måned

5.756 kr.
  • Lejlighed
  • Viborg
  • 92 m2
  • 3 vær.
  • Ubegrænset
Kontakt udlejer

Køb adgang for 8 kr. i 4 dage. Derefter 28 dage til 329 kr.

  • Adgang til alle udlejere
  • Alle boliger
  • Besked om nye boliger
  • Fordele og tilbud
  • Husleje: 5.756 kr.,-
  • Depositum: 8.800 kr.
  • Forudbetalt leje: Kontakt udlejer
  • Forbrug: 1.638 kr.
  • Ledig fra: 1. december 2025
  • Husdyr: Kontakt udlejer
  • Elevator: Kontakt udlejer
  • Altan/terrasse: Ja

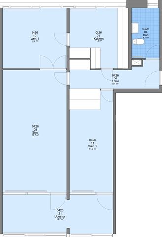
Lejligheden på Odshøjvej i Viborg har et samlet areal på 92 m² fordelt på 3 værelser. Huslejen er 5.756 kr. pr. måned, og der betales et depositum på 8.800 kr. Boligen har egen altan, som bidrager til udendørs plads. Acontoforbruget til vand og varme udgør 1.638 kr. Der er eget køkken og bad samt toilet. Opvarmningen sker via fjernvarme fra Viborg Varmeværk, hvilket sikrer en stabil varmeforsyning. Boligen er uden indvendige trapper, hvilket kan have betydning for tilgængeligheden. Fællesvaskeri og loftskælderrum er tilgængelige for beboerne. Det er muligt at søge indskudslån til denne lejlighed.

Viborg er en by med mange uddannelsesmuligheder tæt på adressen. Blandt de nærliggende uddannelsesinstitutioner findes Asmildkloster Landbrugsskole, Mercantec med flere afdelinger inklusive HCA-afdelingen og Banegårds Alle, Social- og Sundhedsskolen Skive-Thisted-Viborg, VIA University College med campus og Kasernevej-afdeling, Erhvervsakademi Dania samt Aarhus Maskinmesterskole, som tilbyder maskinmesteruddannelsen i Viborg. Denne koncentration af uddannelsessteder giver gode muligheder for studerende i området.

I forhold til trafikforbindelser ligger lejligheden centralt i Viborg, hvor der er gode busforbindelser i nærheden. Busstoppestedet ved Odshøjvej ligger inden for kort afstand og betjenes af flere linjer, hvilket muliggør nem adgang til byens centrum og omegn. For cyklister er Viborg en by, der er velegnet til cykling, og mange daglige gøremål kan klares på cykel.

Nærområdet byder på en række indkøbsmuligheder inden for kort afstand, hvilket gør det praktisk at handle dagligvarer og andre fornødenheder. Viborg centrum tilbyder desuden et varieret udvalg af butikker, caféer og servicefaciliteter, der kan nås hurtigt fra Odshøjvej.

Sammenfattende er denne lejlighed en rummelig bolig i Viborg med gode faciliteter og en placering, der giver nem adgang til både uddannelse, offentlig transport og dagligvareindkøb.

Se alle boliger i Viborg
eller søg i nærheden