91 m2 lejlighed på Vestervangsvej

5.706 kr.
  • Lejlighed
  • Viborg
  • 91 m2
  • 4 vær.
  • Ubegrænset
Kontakt udlejer

Køb adgang for 8 kr. i 4 dage. Derefter 28 dage til 329 kr.

  • Adgang til alle udlejere
  • Alle boliger
  • Besked om nye boliger
  • Fordele og tilbud
  • Husleje: 5.706 kr.,-
  • Depositum: 8.700 kr.
  • Forudbetalt leje: Kontakt udlejer
  • Forbrug: 1.532 kr.
  • Ledig fra: 15. december 2025
  • Husdyr: Kontakt udlejer
  • Elevator: Kontakt udlejer
  • Altan/terrasse: Ja

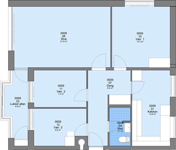
Denne lejlighed på Vestervangsvej i Viborg er på 91 m² og indeholder fire værelser. Huslejen ligger på 5.706 kr., og der betales et depositum på 8.700 kr. Derudover er der en aconto betaling til vand og varme på 1.532 kr. Lejligheden har egen køkken og bad samt eget toilet. Der er fjernvarme og naturgas til opvarmning, og boligen er uden indvendige trapper. Der hører en altan til, som bidrager til ekstra udendørs plads. Parkering er tilgængelig, og der findes fællesvaskeri samt et lofts- og kælderrum til opbevaring. Det er muligt at søge indskudslån i forbindelse med lejemålet.

Viborg er en by med gode muligheder for uddannelse, og flere institutioner ligger inden for kort afstand af boligen. Blandt dem er Erhvervsakademi Dania, VIA University College med campus og afdeling på Kasernevej, Mercantec med flere afdelinger, Aarhus Maskinmesterskole med maskinmesteruddannelsen i Viborg, Social- og Sundhedsskolen samt Asmildkloster Landbrugsskole. Disse uddannelsessteder giver adgang til en bred vifte af videregående og erhvervsrettede uddannelser i nærområdet.

Området omkring Vestervangsvej tilbyder gode muligheder for både offentlig transport og bilkørsel. Viborg har et net af buslinjer, og nærmeste busstoppested ligger inden for en kort afstand fra adressen. Byen har desuden flere hovedveje, som gør det nemt at komme til nærliggende byer og områder.

I nærområdet findes desuden flere indkøbsmuligheder, der dækker dagligvarebehov. Viborg bymidte er inden for kort rækkevidde, hvor der er adgang til større supermarkeder, specialbutikker og andre servicetilbud. Samlet set placerer denne lejlighed sig i et område med gode faciliteter til både uddannelse, transport og dagligdagens praktiske behov.

Se alle boliger i Viborg
eller søg i nærheden