Centralplaceret 2 værelses

4.100 kr.
  • Lejlighed
  • Viborg
  • 45 m2
  • 2 vær.
  • Ubegrænset
Kontakt udlejer

Køb adgang for 8 kr. i 4 dage. Derefter 28 dage til 329 kr.

  • Adgang til alle udlejere
  • Alle boliger
  • Besked om nye boliger
  • Fordele og tilbud
  • Husleje: 4.100 kr.,-
  • Depositum: 12.300 kr.
  • Forudbetalt leje: Kontakt udlejer
  • Forbrug: 950 kr.
  • Ledig fra: 30. januar 2026
  • Husdyr: Kontakt udlejer
  • Elevator: Kontakt udlejer
  • Altan/terrasse: Kontakt udlejer

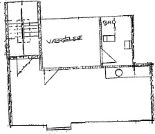
Charmerende 2-værelses taglejlighed på 45 m² med synlige bjælker og trægulve.

Lejligheden består af en åben stue og køkken i ét, udstyret med moderne faciliteter såsom køleskab/fryser, ovn, kogeplader, emhætte og opvaskemaskine. Soveværelset har indbyggede skabe, der giver optimal opbevaringsplads.

Badeværelset er indrettet med en rummelig bruseniche samt en praktisk vaskemaskine. Der betales a conto for vand og varme, mens el afregnes direkte med udbyder.

Plantegning er vejledende.

Se alle boliger i Viborg
eller søg i nærheden