Lejlighed til 6.968 kr.

6.968 kr.
  • Lejlighed
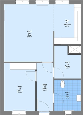
  • Ølgod
  • 77 m2
  • 2 vær.
  • Ubegrænset
Kontakt udlejer

Køb adgang for 8 kr. i 4 dage. Derefter 28 dage til 329 kr.

  • Adgang til alle udlejere
  • Alle boliger
  • Besked om nye boliger
  • Fordele og tilbud
  • Husleje: 6.968 kr.,-
  • Depositum: 17.864 kr.
  • Forudbetalt leje: Kontakt udlejer
  • Forbrug: 763 kr.
  • Ledig fra: 25. februar 2026
  • Husdyr: Ja
  • Elevator: Kontakt udlejer
  • Altan/terrasse: Kontakt udlejer

Moderne byggeri i centrum af Ølgod

If you do not understand Danish, you are welcome to call us for assistance in English with your waiting list registration. Our phone number is 77 32 00 00. Press key 1, followed by key 2.By clicking the Google Translator at the bottom of this page, you have the option to translate all text into any language of your choosing.

Beliggende centralt i Ølgod finder du vores boligafdelinger i smukke og meget fredelige omgivelser.

Gartnerpassagen 3ETAGEBYGGERI fra 1999 med familieboliger. Placeret midt i Ølgod med kort afstand til indkøb, transport med videre. Tilbyder dejlig gårdhave, hvor skønne stunder kan nydes. 10 boliger på 1. sal er plejeboliger, der visiteres gennem Varde Kommune. Der er elevator i boligafdelingen.

Gartnerpassagen 2-4ETAGEBYGGERI fra 1987 og 1999 med ungdomsboliger. Placeret midt i Ølgod med kort afstand til indkøb, transport med videre. Der er fælles vaskeri for  ungdomsboligerne. Der er elevator i boligafdelingen.

KirkevængetRÆKKEHUSE opført i 1982 med terrasse eller have samt dejlige fællesarealer. Hvert lejemål har desuden eget skur.

StoregadeETAGEBYGGERI opført i 1994 med dejlig gårdhave og cykelkælder. Der er desuden dørtelefon til alle lejlighederne.

RosenvængetRÆKKEHUSE opført 1989 med rig mulighed for at være social. Alle boligerne er med gulvvarme, terrasse og skur.

NørregadeETAGEBYGGERI opført 1998. To- til trerumsfamilieboliger, godt disponeret til familier. Der er elevator i ejendommen, hvilket øger tilgængeligheden. Der er gulvvarme, hvilket både er besparende og en dejlig, ensartet varmekilde.

EnghavevejETAGEBYGGERI opført 2002, der fremstår helt nyt og moderne. Her er både ungdomsboliger og familieboliger med op til fire værelser – så altså ikke kun til de små familier. Endvidere er der cykelskur, og til stueetagelejlighederne er der desuden terrasse/have.

VangsgadeRÆKKEHUSE fra 2005, beregnet til familier og ældre. Med terrasser med bede samt med adgang til græsarealer. Både cykel- og redskabsskur.

MejerivejETAGEBYGGERI opført i 2012, der fremstår moderne og nyt. Med dejlig gårdhave, hvor det sociale fællesskab kan holdes i gang. Der er elevator i boligafdelingen.

StoregadeETAGEBYGGERI med skøn, fælles gårdhave. Opført i 1996, placeret i centrum af byen og med kun 10 km til Ølgod. Der er både elevator og cykelskur samt gode parkeringsmuligheder. Nærområdet byder på mange skønne aktiviteter, og de offentlige transportmidler ligger i gåafstand fra boligerne. Der er desuden kun 500-1000 meter til nærmeste dagligvarebutik. Boligernes centrale beliggenhed er fordelagtig for børnefamilier, da der kun er 500 meter til både skoler og daginstitutioner, og sportsaktiviteter findes inden for samme afstand.

Denne bolig udlejes via et almennyttigt boligselskab, vær derfor opmærksom på reglerne for dette.

Åbningstider for telefonisk henvendelse:
(Husk at taste 1 for at komme direkte igennem)

Mandag til fredag kl. 9:30 - 15:00

Se alle boliger i Ølgod
eller søg i nærheden