Skøn 3-værelses lejlighed i Skodsborg

19.500 kr.
  • Lejlighed
  • Skodsborg
  • 99 m2
  • 3 vær.
  • Ubegrænset
Kontakt udlejer

Køb adgang for 8 kr. i 4 dage. Derefter 28 dage til 329 kr.

  • Adgang til alle udlejere
  • Alle boliger
  • Besked om nye boliger
  • Fordele og tilbud
  • Husleje: 19.500 kr.,-
  • Depositum: 58.500 kr.
  • Forudbetalt leje: 39.000 kr.
  • Forbrug: 1.350 kr.
  • Ledig fra: Straks
  • Husdyr: Ja
  • Elevator: Ja
  • Altan/terrasse: Ja

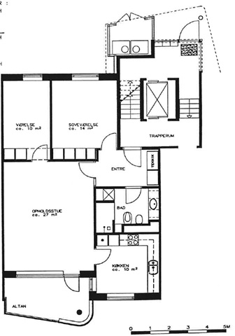
Midt mellem Jægersborg Dyrehave og det blinkende Øresund ligger 94 eksklusive
lejligheder i Skodsborg Sundpark.

 

Alle lejlighederne i Skodsborg Sundpark består- fra 87 til 146 m2 – af
veldisponerede og praktiske rum udført i førsteklasses kvalitetsmaterialer.



For samtlige lejligheders vedkommende er der taget hensyn til udsigten over
Øresund. Opholdsstuer og altaner er således fortrinsvis placeret, så man har
udsigten over vandet.

Samtidig er der naturligvis taget hensyn til, at lejlighederne får så meget
sollys som muligt.



Der er installeret emhætte, indbygget kølefryseskab, opvaskemaskine og indbygget
ovn.

Nogle af boligerne der er indrettet med grovkøkkener er ligeledes indrettet med
samme køkkenelementer, og vaskemaskine og tørretumbler.

 

Badeværelserne er indrettet med praktiske skabe. Håndvasken er nedfældet i en
stor, hvid bordplade. Over vasken er der et stort, indmuret spejl. Der er
desuden installeret en el-håndklædetørre. Væggene er fra gulv til loft beklædt
med hvide fliser – brudt af en smuk blå flise i øjenhøjde.



Soveværelserne har rummelige, hvide garderobeskabe, kantet med kirsebærtræ.
Hvidmalede vægge og mørkt, eksotisk trægulv.



OBS: Billederne er fra et andet lejemål, men skal give et indtryk af stilen i
boligen

Se alle boliger i Skodsborg
eller søg i nærheden